Gorgeous Irregular Shaped House, Perfect for Relaxation
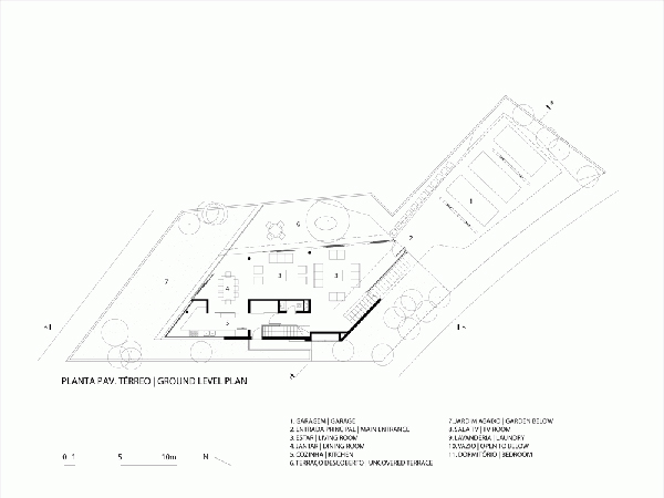
The Offset House is located in Sao Paolo, Brazil, and it was designed by Shieh Arquitetos Associados. This is a curious and particular residence, neat and clean, surrounded by palm trees, offering an interesting perspective through its complicated and irregular shape.
The house abounds in open spaces which offer a continuous fusion and communion between its inhabitants and nature, becoming an essential element of their well-being. Due to its irregular shapes the house might look complicated but, in spite of all these, the architecture is simple, with a minimalist design. What is very original is the fact that trees are somehow integrated within the courtyard’s dynamic, providing beautiful views. The large floor to ceiling windows allows nature and its beauty penetrate inside, creating an atmosphere of calm, peace and relaxation. Natural elements such as stone, pebbles and wood blend wonderfully in a symphony of nature. The interior is simple, with elegant furniture, comfortable sofas for resting places to sit for a friendly talk or to admire the view.
The large elegant terrace allows you to relax and enjoy the sun and the landscape, and what could be more pleasant that staying on an open terrace, drinking your morning coffee surrounded by beauty? The place is perfect for dreaming and”loading your batteries”.




















