Summer House in Nasu Kogen
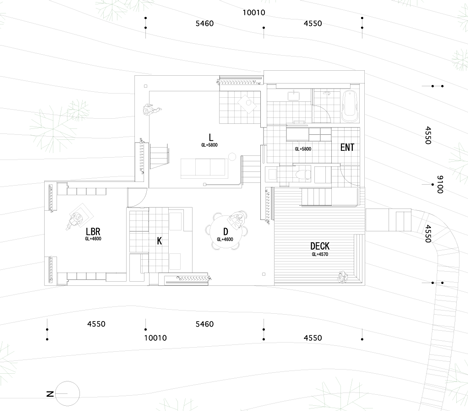
Naoi architects from Tokyo designed Tiered Lodge, this is a three-tiered woodland summerhouse located in Nasu Kogen, Japan. The entry in the house is made through a decked balcony and seating area, from this area the residents can pass through the lower floor dining room.
The owners, a couple and his son asked for a simple place where they can relax away from the daily activities, traffic and crowds. This is the second home for them and represents the harmony between nature and silence, its architecture has to be perfectly integrated in the landscape so they could enjoy more the benefit of having a house in the middle of the nature.
The house is located at an altitude of 1000m, in a summer resort area. Here the landscape includes deciduous trees that can protect against sun in the summer and against wind in the winter. Because the site has a sloping gradient the architects thought to design the house with a continuity sense. This involves two volumes placed on to each other depending of the site form, the process continues by shifting the volumes along horizontal and horizontal axes. The volumes have different size but they create a nice continuity.









