Hilltop House by Openbox Company
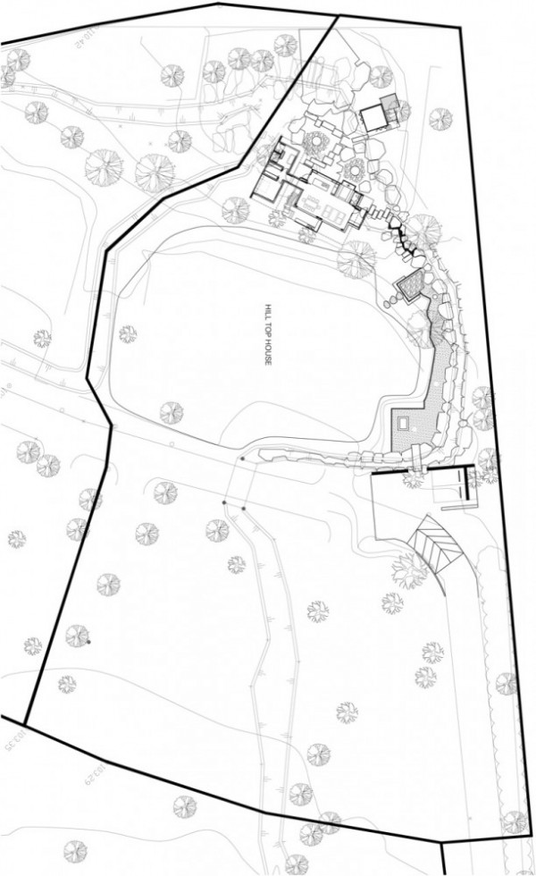
Openbox Company, Itd designed the Hilltop House that is located in the Thailand’s largest national park, Kaoyai National Park, in Nakornratchadima. From the total site of 8000 sqm, the house occupies just 350 sqm. The landscape is rocky and forested but surprising the house was well integrated. The client wanted a simple house with a single bedroom featuring necessary supporting facilities, strange relationships and connections between indoor spaces and indoor-outdoor elements.
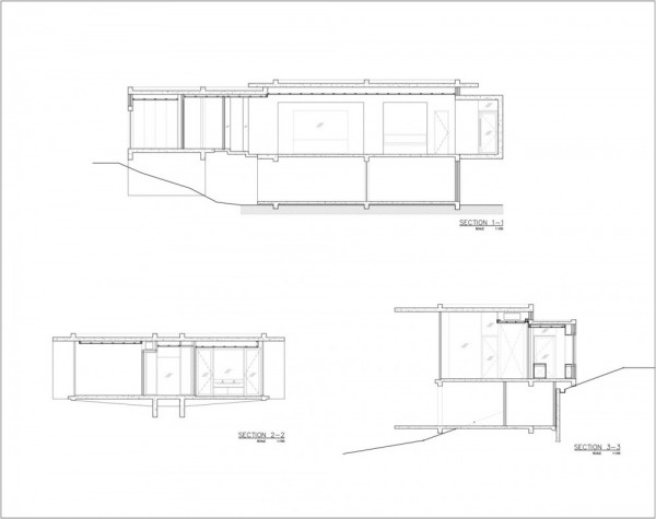
The construction was helped and limited by the existing elements, the architects were informed about every stone and tree and kept them as elements from the design concept. This was an important step in integrating the house in the wild nature. The house was elevated leaving most of the stones as they were, above the stones and sustained by columns. Due to the humidity and rain it was not used paint, the color was brought by concrete and cement expressing the nature and its strength.
The walking path is made by the existing stones and others that had to be added in order to create a functional pathway. The architects tried to remove as little as possible from the natural design so the house looks as it had been planted in the Kaoyai National Park.





