Impressive Restaurant with Views of the North Sea
This beautiful restaurant called Pure C has been designed by Lieven Musschoot architect and is located in Cadzand-Bad, The Netherlands.
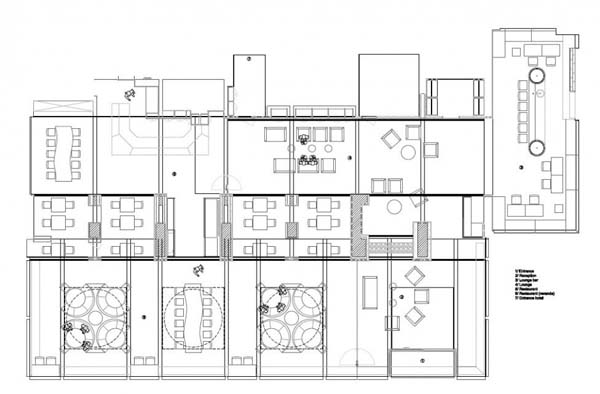
The structure of this restaurant is divided in different zones, each of them reflecting various designs and organization. No matter where you choose to sit, the restaurant offers some amazing panoramic views that can be enjoyed from every zone of the restaurant. The interior design is filled with light thanks to its large windows, and features oval sitting islands that represents the focal point, and creates a relaxed atmosphere.









