Japanese Multi-Purposing building
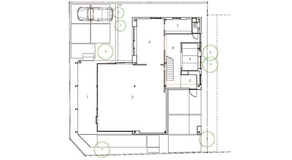
PORT Residence located in Fukuoka city, Japan is designed by the Design Nico Architects- a company from Japan. The two-storey project is a home, workspace and commercial showroom. As it is located on a corner of a road with heavy traffic the architects had to resolve the noisy problem. The front facade was chosen for the showroom, it has double height glazing that stops the direct connection with the street. Creating a modern look the outdoor space is delimited by a linear porch including a red cedar louvers. To be sustainable four steel pillars support a slight angle and gives it a modern aspect.
Stepped back from the plot line was placed the atelier, next to it a parking space. Its the glass that made it more interesting for the passers. This level does not require maximum privacy, it lets curious glances to come in but not too deep. Upstairs is the living space, the use of glass was considerably reduced on this level but it still remains in harmony with the ground level. The interior is spacious, lit enough with simple furniture. Even if it seems a cold house from outside it is a really welcoming one.









